Description
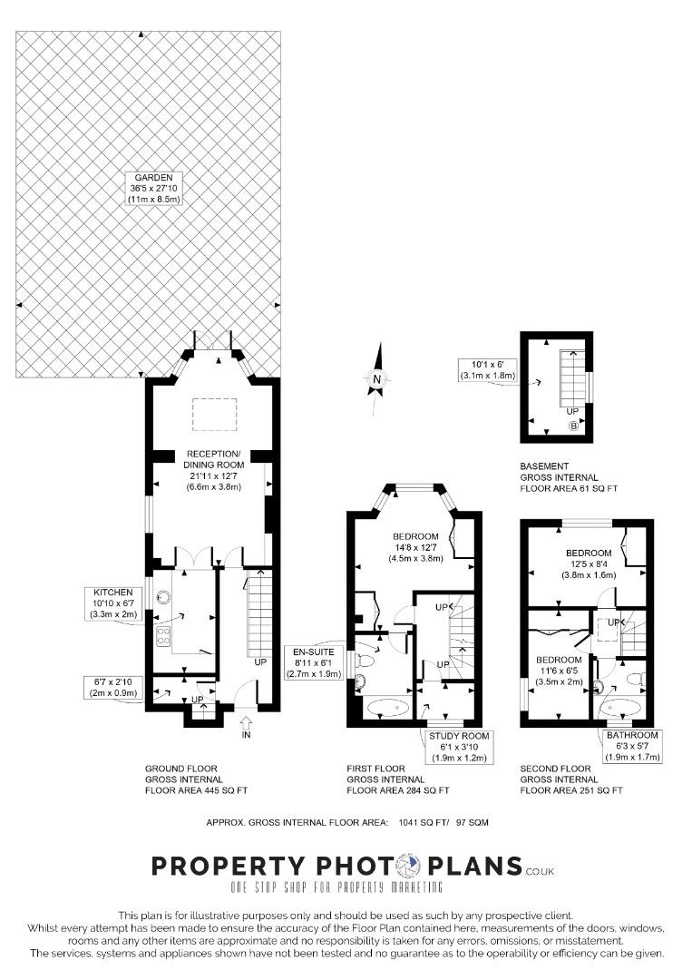
A wonderful 3 bedroom maisonette which has its own entrance and occupies the ground, first and second floors of a handsome Victorian conversion. The property has been redecorated throughout with a brand new kitchen installed.
The double reception is to the rear of the ground floor and has wood floors, built in cabinetry and French doors to the truly impressive 36’5 x 27’10 garden which is paved and lawned and enjoys an open aspect. The contemporary kitchen is to front and there is also access to a good sized basement which is ideal for storage.
The principal bedroom suite is to the front of the first floor and has a bay window, built in wardrobes and access to a generous en-suite bathroom. There is also a study on the floor. The 2 further bedrooms are situated on the second floor (both with built in storage) and there is a separate family bathroom.
Viewing
Please contact us on lettings@finlaybrewer.co.uk if you wish to arrange a viewing appointment for this property or require further information.
Disclaimer
Finlay Brewer endeavour to maintain accurate depictions of properties in virtual tours, floor plans and descriptions, however, these are intended only as a guide and purchasers must satisfy themselves by personal inspection.
A wonderful 3 bedroom maisonette which has its own entrance and occupies the ground, first and second floors of a handsome Victorian conversion. The property has been redecorated throughout with a brand new kitchen installed.
The double reception is to the rear of the ground floor and has wood floors, built in cabinetry and French doors to the truly impressive 36’5 x 27’10 garden which is paved and lawned and enjoys an open aspect. The contemporary kitchen is to front and there is also access to a good sized basement which is ideal for storage.
The principal bedroom suite is to the front of the first floor and has a bay window, built in wardrobes and access to a generous en-suite bathroom. There is also a study on the floor. The 2 further bedrooms are situated on the second floor (both with built in storage) and there is a separate family bathroom.
Viewing
Please contact us on lettings@finlaybrewer.co.uk if you wish to arrange a viewing appointment for this property or require further information.
Disclaimer
Finlay Brewer endeavour to maintain accurate depictions of properties in virtual tours, floor plans and descriptions, however, these are intended only as a guide and purchasers must satisfy themselves by personal inspection.
Features
- 3 BED MAISONETTE
- PRIVATE GARDEN
- DOUBLE RECEPTION
- NEWLY RENOVATED KITCHEN
- WOODEN FLOORS
- OFFICE / STUDY ROOM
- REDECORATED THROUGHOUT
- AVAILABLE NOW
- EPC D
- COUNCIL TAX BAND F
Share

