Details
Ceylon Road, London, W14
Guide price £550,000
Description
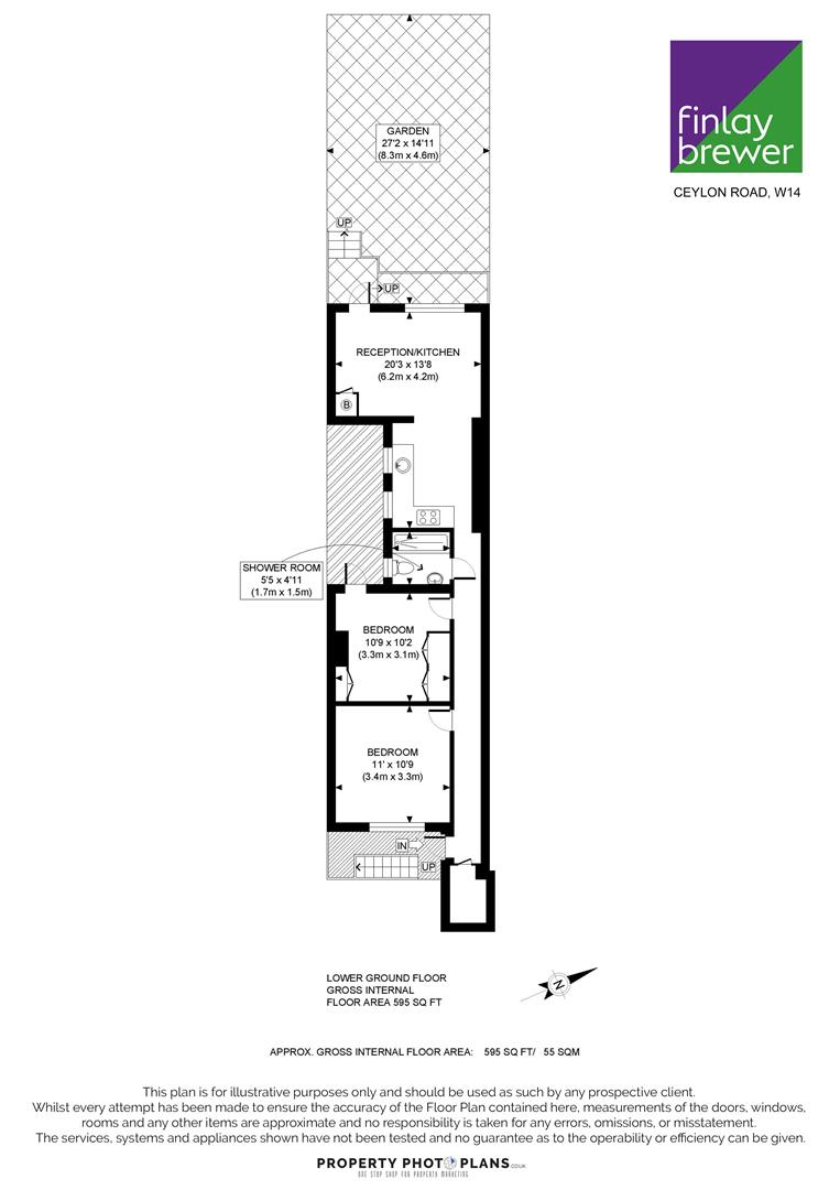
A delightful 2 double bedroom garden flat with its own street entrance and lovely 27' west facing garden. The L shaped kitchen and reception room are to the rear of the property and open on to the walled and paved garden.
This well-presented apartment of approximately 595sq ft is ideally located in the heart of Brook Green on a quiet residential street. It is within walking distance of High Street Kensington, the transport links of Hammersmith Broadway and the exciting new Olympia development.
Viewing
Please contact us on sales@finlaybrewer.co.uk if you wish to arrange a viewing appointment for this property or require further information.
Disclaimer
Finlay Brewer endeavour to maintain accurate depictions of properties in virtual tours, floor plans and descriptions, however, these are intended only as a guide and purchasers must satisfy themselves by personal inspection.
A delightful 2 double bedroom garden flat with its own street entrance and lovely 27' west facing garden. The L shaped kitchen and reception room are to the rear of the property and open on to the walled and paved garden.
This well-presented apartment of approximately 595sq ft is ideally located in the heart of Brook Green on a quiet residential street. It is within walking distance of High Street Kensington, the transport links of Hammersmith Broadway and the exciting new Olympia development.
Viewing
Please contact us on sales@finlaybrewer.co.uk if you wish to arrange a viewing appointment for this property or require further information.
Disclaimer
Finlay Brewer endeavour to maintain accurate depictions of properties in virtual tours, floor plans and descriptions, however, these are intended only as a guide and purchasers must satisfy themselves by personal inspection.
Features
- 2 DOUBLE BEDROOMS
- RECEPTION / KITCHEN
- SHOWER ROOM
- LIGHTWELL
- STORAGE
- PAVED GARDEN
- EPC RATING: TBC
- COUNCIL TAX BAND: D
- LEASE LENGTH: 161 YRS APX
- BUILDERS INSURANCE: £257 PA APX (INCL GROUND RENT)
Share

