Details
Hammersmith Grove, London, W6
£2,200,000
Description
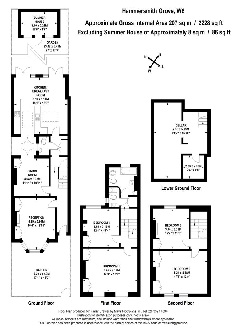
A wonderful 4 double bedroom Victorian mid-terraced house with very good living/entertaining space on the ground floor and a truly fabulous 70’ apx garden with a garden office. There is a high-ceilinged reception to the front with stripped original floorboards; a tall bay window with original shutters and a working feature fireplace with dwarf cupboards and shelving. There is a second reception / study behind with a marble feature fireplace; a built-in bookcase and French doors to a decked lightwell. Steps lead down from the hallway to the full-width kitchen/breakfast room which has a tiled floor; a wood burning stove and 2 sets of floor-to-ceiling Crittall-style French doors and windows which open onto the incredible garden. The walled garden is initially decked, then paved with a central lawned area and there is a useful garden office/studio at the end of the garden. There is also a guest cloakroom; a utilities/laundry cupboard and access to good cellar storage where there is a photographer’s dark room. There are 4 very generous double bedrooms, a bathroom and shower room on the upper floors. This period house of approximately 2130 sq ft has a wealth of original features and a lovely feel. It also offers potential and ample scope to extend and upgrade to one’s own taste and style subject to the usual planning consents.
Viewing
Please contact us on sales@finlaybrewer.co.uk if you wish to arrange a viewing appointment for this property or require further information.
Energy Performance Certificate
Click here to view the Energy Efficiency Rating and Environmental Impact Rating for this property.
Disclaimer
Finlay Brewer endeavour to maintain accurate depictions of properties in virtual tours, floor plans and descriptions, however, these are intended only as a guide and purchasers must satisfy themselves by personal inspection.
A wonderful 4 double bedroom Victorian mid-terraced house with very good living/entertaining space on the ground floor and a truly fabulous 70’ apx garden with a garden office. There is a high-ceilinged reception to the front with stripped original floorboards; a tall bay window with original shutters and a working feature fireplace with dwarf cupboards and shelving. There is a second reception / study behind with a marble feature fireplace; a built-in bookcase and French doors to a decked lightwell. Steps lead down from the hallway to the full-width kitchen/breakfast room which has a tiled floor; a wood burning stove and 2 sets of floor-to-ceiling Crittall-style French doors and windows which open onto the incredible garden. The walled garden is initially decked, then paved with a central lawned area and there is a useful garden office/studio at the end of the garden. There is also a guest cloakroom; a utilities/laundry cupboard and access to good cellar storage where there is a photographer’s dark room. There are 4 very generous double bedrooms, a bathroom and shower room on the upper floors. This period house of approximately 2130 sq ft has a wealth of original features and a lovely feel. It also offers potential and ample scope to extend and upgrade to one’s own taste and style subject to the usual planning consents.
Viewing
Please contact us on sales@finlaybrewer.co.uk if you wish to arrange a viewing appointment for this property or require further information.
Energy Performance Certificate
Click here to view the Energy Efficiency Rating and Environmental Impact Rating for this property.
Disclaimer
Finlay Brewer endeavour to maintain accurate depictions of properties in virtual tours, floor plans and descriptions, however, these are intended only as a guide and purchasers must satisfy themselves by personal inspection.
Features
- 4 DOUBLE BEDROOMS
- RECEPTION
- KITCHEN/BREAKFAST ROOM II DINING ROOM
- FAMILY BATHROOM II SHOWER ROOM
- GUEST CLOAKROOM II UTILITY ROOM
- CELLAR II DARK ROOM
- SUMMER HOUSE
- WALLED& DECKED GARDEN
- EPC RATING: C 73
- COUNCIL TAX BAND: G
Share

