Details
Sinclair Road, London, W14
£685,000
Description
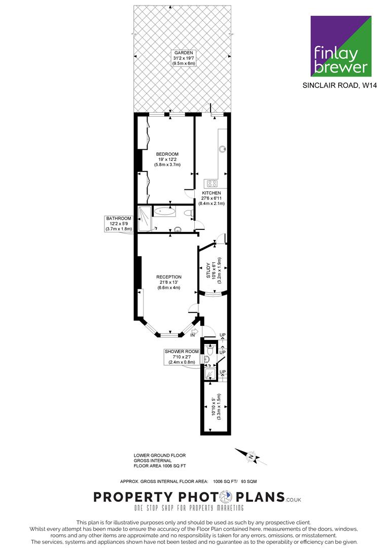
A wonderful lateral 1 bedroom flat which occupies the entire lower ground floor of a handsome stucco-fronted Victorian property with excellent living/entertaining space and a decked and walled garden. The reception is to the front of the property and has a large curved bay window, wood floor, a handsome feature fireplace and built-in shelving. The kitchen/breakfast room is to the rear and has good built-in cupboards and integrated appliances. Doors open on to the fabulous decked and pebbled garden which enjoys an open aspect. There is a generous principal bedroom also situated to the rear with extensive built-in cupboards and 2 large sash windows overlooking the garden. There is also a contemporary bathroom, a guest cloakroom and an additional study area.
This well-presented property of approximately 1000 sq ft is flooded with light, has extensive storage and is ideally located within walking distance of the incredible £1.3 billion London Olympia development as well as the plethora of gastro pubs and cafes in Brook Green Village.
Viewing
Please contact us on sales@finlaybrewer.co.uk if you wish to arrange a viewing appointment for this property or require further information.
Energy Performance Certificate
Click here to view the Energy Efficiency Rating and Environmental Impact Rating for this property.
Disclaimer
Finlay Brewer endeavour to maintain accurate depictions of properties in virtual tours, floor plans and descriptions, however, these are intended only as a guide and purchasers must satisfy themselves by personal inspection.
A wonderful lateral 1 bedroom flat which occupies the entire lower ground floor of a handsome stucco-fronted Victorian property with excellent living/entertaining space and a decked and walled garden. The reception is to the front of the property and has a large curved bay window, wood floor, a handsome feature fireplace and built-in shelving. The kitchen/breakfast room is to the rear and has good built-in cupboards and integrated appliances. Doors open on to the fabulous decked and pebbled garden which enjoys an open aspect. There is a generous principal bedroom also situated to the rear with extensive built-in cupboards and 2 large sash windows overlooking the garden. There is also a contemporary bathroom, a guest cloakroom and an additional study area.
This well-presented property of approximately 1000 sq ft is flooded with light, has extensive storage and is ideally located within walking distance of the incredible £1.3 billion London Olympia development as well as the plethora of gastro pubs and cafes in Brook Green Village.
Viewing
Please contact us on sales@finlaybrewer.co.uk if you wish to arrange a viewing appointment for this property or require further information.
Energy Performance Certificate
Click here to view the Energy Efficiency Rating and Environmental Impact Rating for this property.
Disclaimer
Finlay Brewer endeavour to maintain accurate depictions of properties in virtual tours, floor plans and descriptions, however, these are intended only as a guide and purchasers must satisfy themselves by personal inspection.
Features
- 1 BEDROOM
- RECEPTION
- KITCHEN/BREAKFAST ROOM
- BATHROOM
- STUDY
- DECKED & WALLED GARDEN
- STORAGE / GUEST CLOAKROOM
- EPC RATING C 70 / COUNCIL TAX BAND E
- LEASE LENGTH: 961YEARS APX
- BUILDING INSURANCE: £600 PA APX
Share

